信息來源:未知 編輯: 瀏覽次數: 1 次 發布時間:2014-10-31 09:29 【評論】
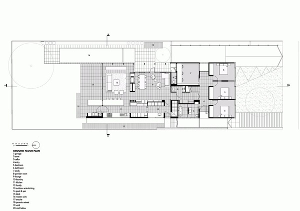
設計師以精簡的表達方式,完成了一件戲劇性的別墅建筑,該設計演繹出空間的靈活性,又不失去家庭生活的實用。 這個實用又美觀的住宅外觀平淡無奇,作為一個靈活的家庭生活空間,室內和外部環境的界線用模糊的手法處理,使每個生活空間都和戶外相結合。 該建筑的精巧細致,大膽的直線形式,和植物相映生輝。房子的一側入口實用舊鐵路枕木做成,在地面形成一個有趣的路徑。 上海鴻鈺別墅設計,精通上海別墅改建改造結構優化加固經驗,上海別墅設計,高端裝修,上海別墅裝修設計經驗,專業的豪宅別墅設計流程,設計裝修的靈魂賦予其精神及內涵,彰顯個性品位!
本文地:http://www.smartsignage.cn/a/sevrs//2014/1030/195.html
作品個性鮮明,風格突出合理的布局,簡潔的風格,精致的軟裝,是我...
作為一名從業時間將近14年的資深設計師,擅長不同的裝飾風格。
設計,不只是結合客戶的一些想法,最終給他創造出一種他自己...
電話:400-085-8552
電話:021-65317787
手機:13301886199
Q Q:205717956
Email:hongyu@hy-hw.net
郵編:20043
網站:www.hy-hw.com
微信:hyhw_net
hongyuhuanwei